Schweinfurt
Kaltmiete 1.500 €

Gewerbefläche oder Back-Café

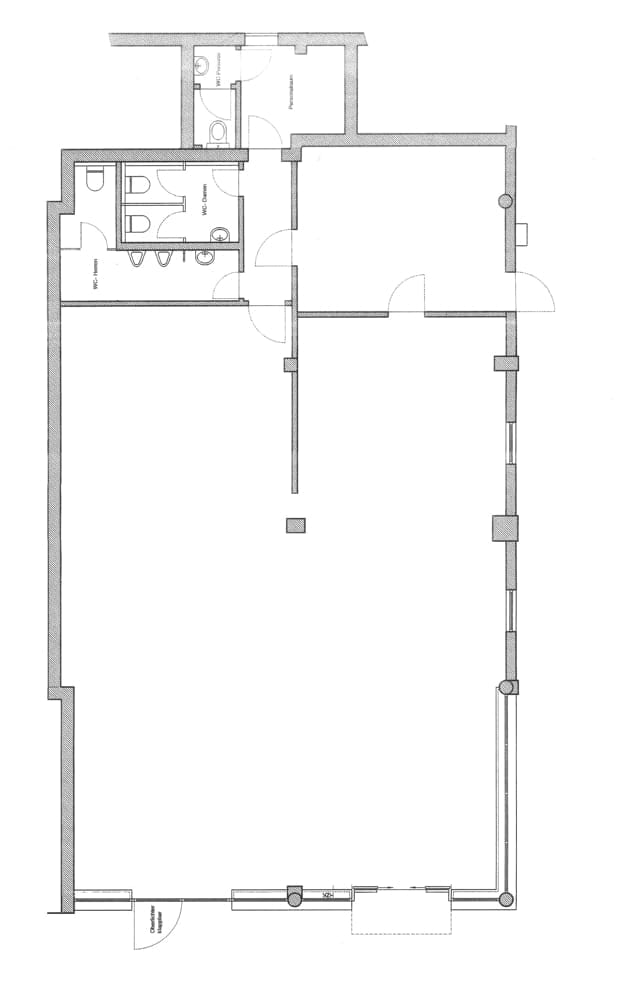
Der angebotene Eckladen mit großzügiger Werbefront wurde zuletzt als Vereinsheim, vorher als Backcafé genutzt. Andere Nutzungsmöglichkeiten sind möglich. Unmittelbar angrenzend stehen 6 Stellplätze (bei Bedarf auch mehr möglich) und ein Außenbereich zur Verfügung. Die Gesamtfläche beträgt ca. 180 m². Anteil der Ladenfläche ca. 145 m². Nebenräume und WC´s ca. 36 m².

Objektdaten

Flächen
Nutzfläche
ca. 181 m²
Gesamtfläche
ca. 181 m²
Verkaufsfläche
ca. 145 m²
Preisangaben
Kaltmiete (netto)
1.500 €
Kaltmiete
1.500 €
Gesamtmiete
1.900 €
Nebenkosten
200 €
Heizkosten
200 €
Betriebskosten (exkl. MwSt.)
200 €
Gesamtbelastung (inkl. MwSt.)
1.900 €
Heizkosten (netto)
200 €
Gesamtmiete (netto)
1.500 €
Mieterprovision
2,38 KM
Kaution
3.000 €
Verwaltungsinformationen
Bezugsfrei ab
sofort
Gewerbliche Nutzung möglich
Ja
Kategorie
Objekttyp
Ladenlokal
Nutzungstyp
Gewerbe
Verfügbarkeit
Verfügbar
Vermarktungstyp
Miete

Ausstattung

Abstellraum
Ja

Sonstige Angaben

Die Nutzung als Gastronomie mit Küche ist nicht möglich.

Mindestmietdauer 1 Jahr, gerne längerfristig.

Weitere Angebote finden Sie auf unserer Homepage: www.mentor-sw.de.

Sehr geehrte Interessenten und Kunden,
wir verabschieden uns in die Weihnachtspause und sind vom 22. Dezember bis einschließlich dem 06. Januar 2026 (Heilige Drei Könige) nicht persönlich erreichbar.

Selbstverständlich können Sie uns in dieser Zeit jederzeit eine E-Mail senden oder unser Kontaktformular nutzen. Ab dem 7. Januar stehen wir Ihnen mit frischer Energie für Ihre Immobilienanliegen zur Verfügung und bearbeiten schnellstmöglich alle Anfragen!

Lage

Die angebotene Gewerbeimmobilie befindet sich in Schweinfurt, Stadtteil Oberndorf. Oberndorf liegt am westlichen Rand der Stadt Schweinfurt und hat eine gute Infrastruktur.
In nächster Nähe befinden sich ein Baumarkt, Tankstelle, Großindustrie, diverse Dienstleistungs- und Handelsunternehmen, Kindergarten, Schule etc.
Zum Hauptbahnhof Schweinfurt sind es ca. 1 km. Zur nächsten Autobahnanschlussstelle (A70) nur 1,5 km. Nur wenige Meter entfernt gibt es eine Stadtbushaltestelle mit Verbindung zu Bahnhof und Innenstadt.

Die angebotene Gewerbeeinheit ist Teil eines größeren Gebäudes mit folgenden Nutzern:
Diskothek, Spielothek, Reitsportfachgeschäft. Das Grundstück ist als Gewerbegebiet eingestuft.

Kindergarten
0.60 km
Grundschule
0.50 km
Realschule
2.90 km
Gymnasium
2.90 km
Autobahn
1.50 km
Zentrum
3.50 km

Energieeffizienzklasse

A+
A
B
C
D
E
F
G
H
Baujahr1960
EnergieausweisVerfügbar
Energie­ausweistypVerbrauchsausweis
Gültig bis28.07.2033
Endenergieverbrauch107,20 kWh/(m²·a)
PrimärenergieträgerGas
Energieeffizienz KlasseD
Endenergiebedarf Strom5.70 kWh/(m²·a)
Endenergiebedarf Wärme107.20 kWh/(m²·a)

Ihr Ansprechpartner

Kontaktaufnahme

weitere Immobilienangebote