Wollen Sie Ihre Wohnung in 97422 Schweinfurt zügig an qualifizierte Mieter vermitteln?
Dank gezielter Marktanalyse und bewährter Auswahlverfahren vermeiden wir Mietausfälle und sorgen für kontinuierliche Erträge durch sorgfältig geprüfte Interessenten.
Vereinbaren Sie Ihren Beratungstermin.
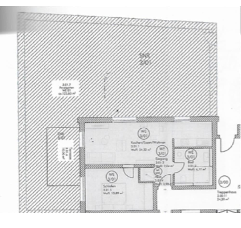
Diese 2025 fertiggestellte Wohnung am naturnahen Stadtrand bietet auf 52,5 m² allen Komfort, den man sich wünschen kann. Die offene Gestaltung des Wohnbereichs mit offener Einbauküche schafft eine einladende Atmosphäre. Über bodentiefe Fenster gelangt man auf den Garten, der nach Absprache mit den Eigentümern und der Hausverwaltung (Kanalleitung) individuell angelegt werden kann.
Das großzügige Badezimmer mit ebenerdiger Dusche unterstreicht den barrierefreien Charakter der Wohnung. Praktische Details wie elektrische Rollläden und RJ 45 Verkabelung für Glasfaserinternet runden das Angebot ab. Ein individuell errichteter Einbauschrank sowie ein Kellerraum mit Stromanschluss bieten zusätzlichen Stauraum. Für das Wohlbefinden sorgt die Fußbodenheizung in allen Räumen, ergänzt durch eine nachhaltige Biomassenanlage als Nahwärmeversorgung.
Sowohl Keller als auch die Wohnung sind bequem per Aufzug von der Tiefgarage aus erreichbar. Die Wohnanlage verfügt zudem über einen gemeinschaftlichen Fahrradraum.



























